





![]()
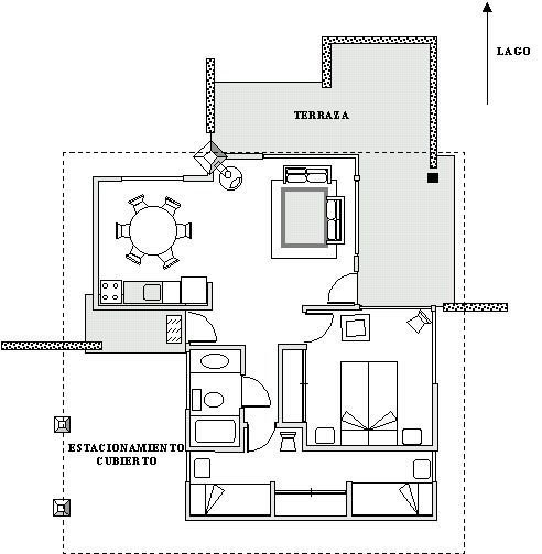
Habitación matrimonial y dormitorio con literas para cuatro personas,
baño completo, living, comedor con kichenette completa y calefacción
a combustión lenta. Alhajada para 6 personas.

Cabañas Río Pescado - Sala de Convenciones - Camino a Ensenada Km. 26
Reservas Teléfono: +56 (65) 2335393 - Puerto Varas.
Región de Los Lagos - Patagonia - Chile.
E-mail: cabanasriopescado@gmail.com
Teléfono: +56 (65) 2335393